EMIL RETT DUSJHJØRNE 100x100 BØRSTET MESSING/ SOTET GLASS

18 800,-
15 040,-

EMIL 100x100X200 sotet glass, børstet messing – Et eksklusivt og stilrent dusjhjørne i sotet glass med hengsler i børstet messing

Vikingbads mest eksklusive dusjløsning. EMIL er en stilren og elegant dusjserie bestående av dusjdører og glassfelt med hengsler i 8 mm herdet sikkerhetsglass. Med hengslene får du montert dusjdørene/glassfeltet rett på vegg og opp fra gulv, som gir et svevende, minimalistisk og stilrent utrykk. Du kan kombinere dusjdørene og glassfeltene som du ønsker. Glasset kommer i tre ulike utførelser; klart, sotet og bronse.

Hengslene er stabile og kommer i krom, sort matt, gull, børstet grå, bøstet messing og børstet rosègull. Dusjløsninger med kombinasjoner av glassdør og glassfelt er en stadig mer populær løsning, EMIL serien har et stilrent og elegant utrykk og er enkle å rengjøre.

  • 2 stk. Emil dusjdører
  • 8 mm herdet sikkerhetsglass
  • 2 stk hengsler pr dør (180° sving på dør)
  • 2 stk håndtak

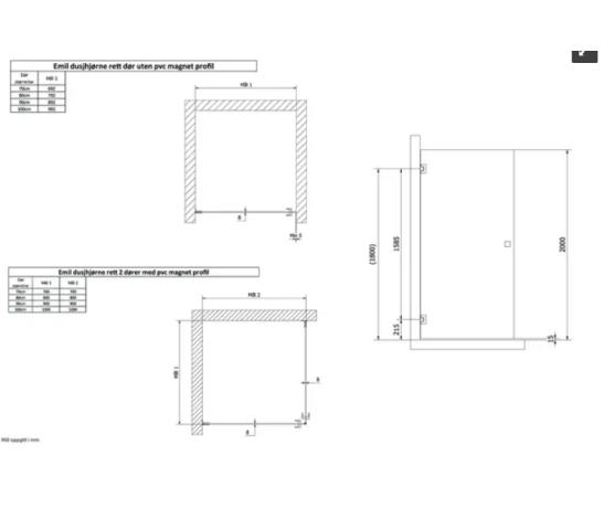
Emil dusj har begrenset justeringsmuligheter mot vegg, men vil alltid kunne monteres så sant veggens toleranseklasse er i henhold til normalkrav for innervegger angitt i NS3420-1 (3mm helling pr høydemeter). Målene er oppgitt i ytterkant glass, husk å sjekk installasjonsveilederen eller dusjkalkulatoren for finne den dusjløsning som passer ditt bad.

Magnetlist i PVC til hjørne må kjøpes som tillegg ( se relatert produkt nedenfor)

Les mer »
Leveringstid: 1-2 Uker

Spesifikasjoner

Kategori

Dusjhjørne

Merke

VikingBad

Farge

Profil Børstet messing, Glass: Dark Frost

Varenummer
118700
EAN
1434821
Mål
100 × 200 cm
Properties
Dusj Hjørne
? Dusj løsning som skal plasseres i et hjørne.
100 X 100

Anmeldelser

Hvilken dusj passer til badet ditt og hva bør du tenke på når du skal bytte dusj? Vi har solgt dusjer i over 25 år og har noen god råd på veien.

Nytt bad steg for steg eller oppgradere alt med en gang. Valg er deres.  Tar dere steg for steg så kan dere enkelt bytte ut servantkran, toalett og dusj i etapper, slik at det både blir pent og overkommelig for lommeboken.

I dag er det et enormt utvalg av dusjvarianter og løsninger å velge mellom. Fra enkle og rimelige til avanserte og luksuriøse dusjkabinett, single og doble dusjer, til løsninger for badekar med dusj og spesialtilpasset dusj for skråtak og loft. Fastmontert dusjvegg, foldedører, runde dusjdører, dusjvegger, dusjhjørne og dusjnisje. Valget er ditt! 

Våre beste råd er:

– Hvis du skal bytte dusj, se på hvilke løsninger som er der i dag og hva som er grunnen til at den er der? Har du dusjkabinett, kan det være fordi badet ditt ikke er tett, eller at forrige eier var usikker på om det er tett.

PRAKTISK LØSNING : Velg dere en Linc Angel løsning så kan dere få ekstra lagringsplass i dusjen ved å velge en PILE løsning.

Hva tåler badet ditt?

Sjekk hva som er gjennomførbart på badet ditt, med tanke på plass, utforming og tetthet. En rørlegger kan være lurt å få på befaring for å se over badet.

En rørlegger vil også kunne se på feks på veggens bæreevne dersom du skal montere dusjvegger. Dere kan se på løsninger for dusjbatteri og takdusj, eller om dere må gjøre justeringer dersom man tar ut et gammelt badekar og setter inn en dusj.

Hva er badets totalte tilstand er viktig å finne ut av.  Noen ganger vil bytte av dusj føre til en større oppgradering, fordi man oppdager at det er nødvendig. Andre ganger kan det å bytte dusjvegger være en enkel sak – med stor effekt. Men husk og sjekk fallet i dusjen. Vannet skal i sluken og ikke utover gulvet.

Rørlegger gir gode tips om hva som kan fungere godt på akkurat ditt bad.